Commercial À vendre à Downtown Hespeler, Cambridge, Ontario
2 500 000 $None Chambres
-
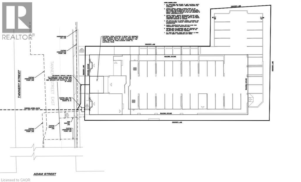
Détails
-
Carte
-
Données démographiques
-
Vue de la rue
-
Itinéraire
-
Publicité

